AMP Vastgoed
Koningin Astridlaan 39
2500
Lier
E.patrik@ampvastgoed.be
Ref: 20251030 RIV II - 37/002
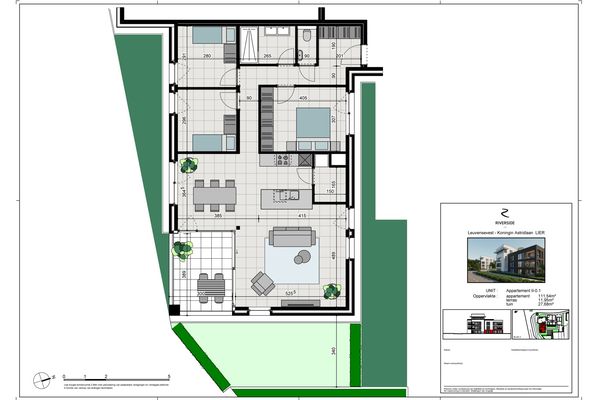
Dit appartement is gelegen in Residentie Riverside II te Lier, een nieuwbouwproject gebouwd in een moderne stijl in het centrum van Lier. Dit BEN appartement EPC 31kWh/m² jaar) heeft een oppervlakte van 111,54m² bevindt zich op het gelijkvloers en omvat: inkomhal, toilet, leefruimte met veel lichtinval, open keuken, 3 slaapkamers, badkamer met dubbele wastafel en inloopdouche, berging, terras en tuin hebben zicht op de groene gordel rond Lier. Er bestaat een mogelijkheid tot het huren van een ondergrondse autostaanplaats met toegang via een autolift aan € 100 (+ € 30 indien men gebruik wil maken van een laadunit), de laadunit heeft een respectievelijk maximum vermogen van 22kW (zeer krachtig voor een thuisinstallatie), alle armaturen zijn voorzien van LED verlichting, vloerverwarming (via warmtepomp), zonnepanelen (gemiddeld verbruik € 1000 à € 1200 per jaar) kelderberging (nr. 2.01 op -1) . Lift en fietsenberging met lockers zijn aanwezig. De residentie is voorzien van een ruime en mooi aangelegde binnentuin. De maandelijkse provisiekost bedraagt €150 (onderhoud WP en ventilatie, poetsen ramen, poetsen gemene delen, elec. gemene delen, onderhoud personen en autoliften, ...). Recente foto's zijn niet beschikbaar. Plannen zijn onderaan te downloaden. Dit appartement is vrij vanaf 1 december 2025.
Voor meer informatie en/of het maken van een afspraak: patrik@ampvastgoed.be en/of 0465/00.40.45 - 0465/00.40.44
Voor meer informatie en/of het maken van een afspraak: patrik@ampvastgoed.be en/of 0465/00.40.45 - 0465/00.40.44
| Naam |
Patrik Martin
|
| GSM |
| Maandelijkse lasten |
€ 150,00
|
| Totale prijs |
€ 1.250,00
|
| Waarborg |
€ 3.750,00
|
Verdieping -1
| Ondergrondse berging |
B2.01
|
Gelijkvloers
| Inkomhal |
|
| Leefruimte |
42 m²
|
| Open keuken |
|
| Slaapkamer |
12,5 m²
|
| Slaapkamer |
8 m²
|
| Slaapkamer |
8 m²
|
| Badkamer |
Dubbele wastafel en inloopdouche
|
| Gastentoilet |
|
| Berging |
|
| Tuin |
25 m²
ZO
|
| Terras |
12 m²
ZO
|
| lift |
|
| Fietsenberging |
Met lockers (mogelijkheid om fietsbatterij op te laden)
|
| EPC |
31 kWh/m2/jaar
|
| EPC ref. |
12021-G-OMV_2020020023/EP21425/A0002/D01/SD001
|
| Label |
|
| E peil |
17
|
31 kWh/m2/jaar
| Totale opp. grond |
1.600 m²
|
| Bewoonbare opp. |
112 m²
|
| Breedte huis |
9 m
|
| Elektriciteit |
Ja
|
| Stadswater |
Ja
|
| Videofoon |
Ja
|
| Vloerverwarming |
Ja
|
| Warmtepomp |
Ja
|
| Zonnepanelen |
Ja
|
| Beglazing |
Dubbele
|
| Keuken |
Hyper-geïnstalleerd
|
| Raamwerk |
Aluminium
|
| Verwarming |
Warmtepomp
|
| Bouwjaar |
2024
|
| Algemene staat |
Nieuwe staat
|
| Beschikbaar |
1/12/2025
|
| Oriëntatie tuin |
Zuidoost
|
| Elektriciteitscertificaat |
Ja, Conform
|
| Conformiteitsattest |
Ja, Conform
|
| Lift |
Ja
|
| Overstromingsgevoeligheid |
Niet overstromingsgevoelig
|
| G(ebouw)-score |
A
|
| P(erceel)-score |
A
|
| Stedenbouwkundige bestemming |
Niet ingegeven
|
| Dagvaarding voor stedenbouwkundige overtreding |
Niet ingegeven
|
| Bouwvergunning |
Bouw vergund
|
| Verkavelingsvergunning |
Niet ingegeven
|
| Voorkooprecht |
Niet ingegeven
|
| Beschermd erfgoed |
Niet ingegeven
|
| Renovatieplicht |
Niet ingegeven
|